Welcome
Services
Our Firm
Projects
Corporate Interiors
Retail & Hospitality
Medical Facilities
Pharmaceutical & Industrial
Architecture
Religious
Government GSA
Residential
Before and After
TestimonIals
Contact
Welcome
Services
Our Firm
Projects
Corporate Interiors
Retail & Hospitality
Medical Facilities
Pharmaceutical & Industrial
Architecture
Religious
Government GSA
Residential
Before and After
TestimonIals
Contact
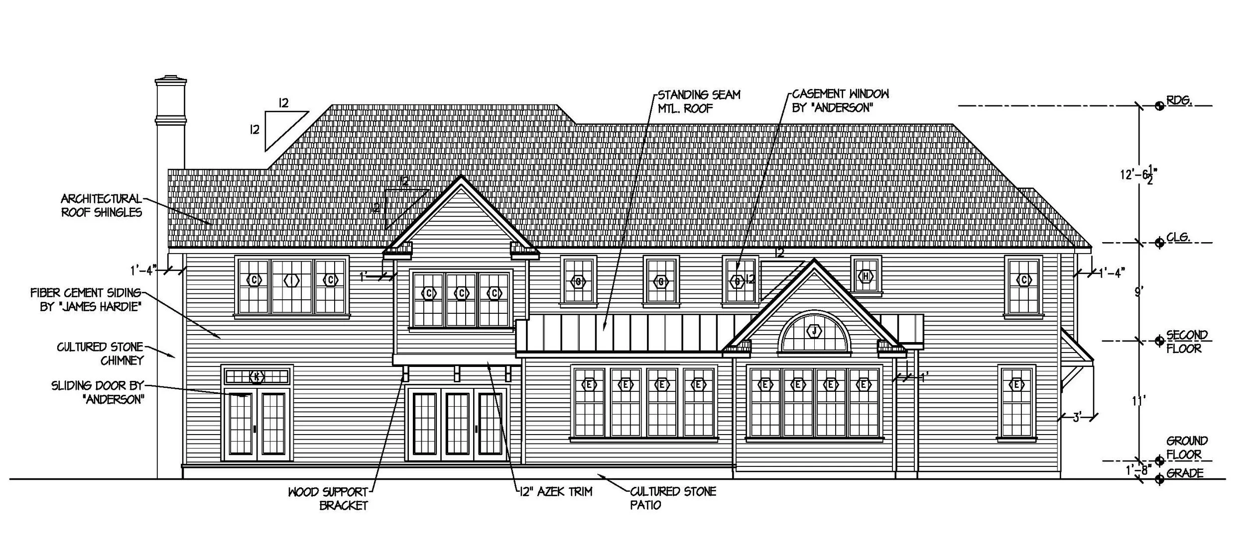
Malvern, PA
Ground Up Custom Home (In Progress)